Αρχιτεκτονικό Γραφείο Μελετών & Κατασκευών

Σύμβουλοι Αρχιτέκτονες Μηχανικοί

ΑρχικήΓενικάΠαρουσίασηΟργάνωσηΔιάφοραΕπικοινωνίαΠωλήσειςEnglish

κάντε click στις εικόνες για μεγέθυνση

διπλωματική εργασία

ΛΑΓΙΟΥ ΣΟΦΙΑ

 

M A K E T A  Π Ρ Ο Τ Α Σ Η Σ

Σ Χ Ε Δ Ι A  Π Ρ Ο Τ Α Σ Η Σ

Σ Κ Ι Τ Σ Α

ΚΕΝΤΡΟ ΕΠΑΓΓΕΛΜΑΤΙΚΗΣ ΚΑΙ ΚΟΙΝΩΝΙΚΗΣ ΕΝΤΑΞΗΣ ΑΤΟΜΩΝ ΜΕ ΚΙΝΗΤΙΚΑ ΠΡΟΒΛΗΜΑΤΑΣΤΗΝ ΚΥΨΕΛΗ

διπλωματική εργασία ΕΜΠ, 2004 σε συνεργασία με την αρχιτέκτονα ΕΜΠ : ΜΠΡΑΣΙΝΙΚΑ ΜΑΡΙΑ

 

ΠΕΡΙΓΡΑΦΗ :

Το κτίριο βρίσκεται σε διαμπερές οικόπεδο επί των οδών Ευελπίδων και Τροίας, απέναντι από το Πεδίο του Άρεως. Στο κέντρο της Αθήνας δεν υπάρχει αντίστοιχο δημόσιο ΚΕΚ για ΑΜΕΑ.

Το σύστημα κεκλιμένων επιπέδων (ραμπών) με κλίση 5% διατρέχει όλο το κτίριο και διαμορφώνει εσωτερικές πορείες και περιπάτους. Κατ' αυτόν τον τρόπο οι χρήστες αποκτούν πλήρη αντίληψη της δομής και λειτουργίας του κτιρίου.

Κύριος στόχος είναι η κοινωνικοποίηση των ατόμων με τη δημιουργία ενός κτιρίου, τοπόσημου για την ευρύτερη περιοχή, χωρίς ιδρυματικό χαρακτήρα. Η δυναμική μορφή του κτιρίου αποτελεί κίνητρο και έμπνευση για τους χρήστες του.

Η σύνδεση του κτιρίου με τη γειτονιά διαμορφώνεται με το δημόσιο πέρασμα που ενώνει την οδό Ευελπίδων με την οδό Τροίας και την εξωτερική πορεία που καταλήγει σε εξώστη με θέα το Πεδίο του Άρεως.

Η κάτοψη του κτιρίου σε σχήμα S του οποίου τα άκρα κολλάνε στα όμορα κτίρια απελευθερώνει τους γειτονικούς ακάλυπτους. Εσωτερικά, σε επίπεδο τομής οι πλάκες προς τα πάνω, υποχωρούν σταδιακά, δημιουργώντας οπτικές επαφές ανάμεσα στα επίπεδα. Η κεκλιμένη πλάκα στέγασης εντείνει την έννοια της ροής και της κινητικότητας του κτιρίου.

 

Κτιριολογικό Πρόγραμμα :

Διοίκηση

Υποδοχή, Αίθουσα Πολλαπλών Χρήσεων, Εστιατόριο, Εντευκτήριο, Βιβλιοθήκη, Κατάστημα-Εκθετήριο

Προκατάρτιση

Επαγγελματική κατάρτιση (τμήμα Η/Υ, χειροτεχνία-ξυλογλυπτική, κεραμική, αγιογραφία, κηροπλαστική, ανθοδεσία, φωτογραφία)

Συνοδευτικές υποστηρικτικές υπηρεσίες (κοινωνικός λειτουργός, λογοθεραπευτής, διαιτολόγος, ψυχολόγος) Εργοθεραπεία

Προώθηση στην απασχόληση

 

Συνολική επιφάνεια κτιρίου = 5.500 μ2

 

 

διάλεξη

ΛΑΓΙΟΥ ΣΟΦΙΑ

 

ΗΛΙΑΚΟ ΧΩΡΙΟ 3: ΔΙΑΠΙΣΤΩΣΕΙΣ 15 ΧΡΟΝΙΑ ΜΕΤΑ

   

ΗΛΙΑΚΟ ΧΩΡΙΟ 3: ΔΙΑΠΙΣΤΩΣΕΙΣ 15 ΧΡΟΝΙΑ ΜΕΤΑ

διάλεξη ΕΜΠ, 2003 σε συνεργασία με την αρχιτέκτονα ΕΜΠ : ΓΑΛΙΑΤΣΑΤΟΥ ΙΟΥΛΙΑ

   

 

ΠΕΡΙΓΡΑΦΗ :

Το Ηλιακό Χωριό 3 αποτελεί χαρακτηριστικό παράδειγμα εφαρμογής βιοκλιματικής αρχιτεκτονικής σε μεγάλη κλίμακα. Είναι ένας πρότυπος οικισμός του Οργανισμού Εργατικής Κατοικίας, για 435 οικογένειες δικαιούχων. Ο σχεδιασμός και η κατασκευή του εντάσσεται στα πλαίσια ενός πειράματος, το οποίο την εποχή που πραγματοποιήθηκε ήταν από τα μεγαλύτερα όχι μόνο σε ευρωπαϊκή αλλά και σε παγκόσμια κλίμακα. Κεντρική ιδέα του όλου εγχειρήματος ήταν να κατασκευαστούν και να δοκιμαστούν σε μεγάλη κλίμακα μια ποικιλία ηλιακών συστημάτων, παθητικών και ενεργητικών, για την θέρμανση κτιρίων και για την παροχή ζεστού νερού.

Με την εφαρμογή σε ευρεία κλίμακα των ηλιακών συστημάτων έγινε δυνατή η σύγκρισή τους σε πραγματικές συνθήκες και με στατιστικά αποδεκτή μέση ανθρώπινη συμπεριφορά.

Η εργασία ερευνά πόσο μπορούν οι χρήστες να εξοικειωθούν με συστήματα εκμετάλλευσης ήπιων μορφών ενέργειας και πόσο η συμπεριφορά τους επηρεάζει τον βαθμό απόδοσής τους.

Πραγματοποιήθηκε επιτόπου έρευνα και παρατηρήσεις στον οικισμό κατά την διάρκεια ενός έτους, συνεντεύξεις με κατοίκους και υπεύθυνους του Ηλιακού Χωριού, μελέτη βιβλιογραφίας σχετικά με το συγκεκριμένο πείραμα και γενικότερα σχετικά με την βιοκλιματική αρχιτεκτονική και τον ενεργειακό σχεδιασμό. Ακολούθησε αξιολόγηση των στοιχείων και εξαγωγή συμπερασμάτων σχετικά με την επιτυχία του πειράματος και την σημερινή κατάσταση του Ηλιακού Χωριού.

 

ΠΑΡΑΤΗΡΗΣΕΙΣ ΚΑΙ ΣΥΜΠΕΡΑΣΜΑΤΑ ΑΠΟ ΤΗΝ ΕΠΙ ΤΟΠΟΥ ΕΡΕΥΝΑ 15 ΧΡΟΝΙΑ ΜΕΤΑ :

Ύστερα από 15 χρόνια λειτουργίας του Ηλιακού Χωριού, φαίνεται ότι πρόκειται για ένα σχετικά επιτυχημένο πείραμα σε ότι αφορά την εφαρμογή και την παρακολούθηση πρωτοποριακών ενεργειακών συστημάτων σε μεγάλη κλίμακα αλλά και από κοινωνική άποψη. Η συνεχής παρακολούθηση και μέτρηση των τιμών των συστημάτων έχει βοηθήσει στη συγκέντρωση στοιχείων και πολύτιμης εμπειρίας, αξιοποιήσιμης σε μελλοντικές εφαρμογές. Πέρα από τα οφέλη που προκύπτουν σε θεωρητικό επίπεδο η επιστημονική εμπειρία μπορεί να συμβάλλει ουσιαστικά στη βελτίωση των πρακτικών και των υλικών κατασκευής με βάση τις συνθήκες που επικρατούν στη χώρα. Τα στοιχεία που προκύπτουν μπορούν να βοηθήσουν στη βελτίωση των τεχνικών χαρακτηριστικών των συστημάτων και να οδηγήσουν στην παραγωγή και προώθηση στην αγορά νέων. Εξάγονται συμπεράσματα για το ποια από αυτά είναι περισσότερο εύχρηστα, άρα περισσότερο αποδεκτά από τους χρήστες, ώστε να δικαιολογείται η εφαρμογή τους σε έργα μεγάλης κλίμακας.

Επιτεύχθηκε σημαντική μείωση της κατανάλωσης των συμβατικών καυσίμων που ήταν ένας από τους πρωταρχικούς στόχους της δημιουργίας του Ηλιακού Χωριού και παρατηρήθηκε μείωση της ατμοσφαιρικής ρύπανσης. Με βάση τα παραπάνω ο Ο.Ε.Κ σχεδιάζει να προχωρήσει στην ένταξη βιοκλιματικών στοιχείων στους οικισμούς που θα κατασκευαστούν μελλοντικά αξιοποιώντας την πολύτιμη εμπειρία.

Βέβαια, μέσα από το πείραμα του Ηλιακού Χωριού αποδείχθηκε ότι ορισμένα από τα ενεργητικά ηλιακά συστήματα παρά το ότι εμφανίζουν υψηλό βαθμό απόδοσης, δεν λειτούργησαν σωστά. Αυτό οφείλεται στο ότι χρησιμοποιούν εξειδικευμένη τεχνολογία και η επισκευή τους αποδεικνύεται αντιοικονομική. Προτιμώνται συστήματα εγχώριας κατασκευής, συχνά με μικρότερη απόδοση, για τα οποία όμως είναι ευκολότερο να βρεθούν ανταλλακτικά.

Τα παθητικά συστήματα όταν αυτά δεν συσχετίζονται με την καθημερινή ζωή των ανθρώπων ή όταν δεν αφομοιώνεται η σωστή χρήση τους από τους κατοίκους έχουν πολύ μειωμένη απόδοση. Εξαιτίας αυτού δεν ενδείκνυται η γενικευμένη κατασκευή παθητικών κτηρίων των οποίων η λειτουργία στηρίζεται αποκλειστικά στους χειρισμούς του χρήστη. Είναι επιθυμητή η ένταξη αυτοματισμού σε τέτοια συστήματα καθώς και η ύπαρξη αξιόπιστων και οικονομικών εφεδρικών συστημάτων σε μελλοντικές εφαρμογές. Κάτι τέτοιο μπορεί να οδηγήσει σε σημαντική αύξηση του κόστους εγκατάστασης των συστημάτων, ωστόσο μακροπρόθεσμα επιτυγχάνεται απόσβεση μέσω της εκμετάλλευσης των ήπιων πηγών ενέργειας.

Παρ’ όλες τις δυσκολίες και τα μειονεκτήματα το Ηλιακό Χωριό στην Πεύκη προσφέρει στους κατοίκους του ένα ελκυστικό περιβάλλον και ποιότητα ζωής καλύτερη από ότι στα περισσότερα συγκροτήματα εργατικών κατοικιών του ΟΕΚ.

 

 

αρχιτεκτονικός διαγωνισμός

ΛΑΓΙΟΥ ΣΟΦΙΑ

 

Μ Α Κ Ε Τ Α  Π Ρ Ο Τ Α Σ Η Σ

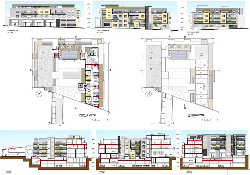
Π Ι Ν Α Κ Ι Δ Ε Σ

 

ΣΥΓΚΡΟΤΗΜΑ ΚΑΤΟΙΚΙΩΝ ΚΑΙ ΚΑΤΑΣΤΗΜΑΤΩΝ ΣΤΟ ΜΕΤΑΞΟΥΡΓΕΙΟ ΤΗΣ ΑΘΗΝΑΣ

αρχιτεκτονικός διαγωνισμός 2006

ομάδα μελέτης : ΛΑΓΙΟΥ ΣΟΦΙΑ αρχιτέκτων ΕΜΠ

                        ΓΑΛΙΑΤΣΑΤΟΥ ΙΟΥΛΙΑ αρχιτέκτων ΕΜΠ

                        ΜΠΡΑΣΙΝΙΚΑ ΜΑΡΙΑ αρχιτέκτων - πολεοδόμος ΕΜΠ

                        ΣΟΥΛΙΩΤΗ ΧΡΥΣΟΥΛΑ αρχιτέκτων ΕΜΠ

 

ΠΡΑΓΜΑΤΟΠΟΙΟΥΜΕΝΑ ΣΤΟΙΧΕΙΑ ΜΕΛΕΤΗΣ :

Κάλυψη = 1.350 μ2

Επιφάνεια κατοικιών = 3.320 μ2

Επιφάνεια καταστημάτων = 530 μ2

Συνολική Δόμηση = 4.650 μ2

Ύψος = 15,50 μ

Αριθμός ορόφων = 2 υπόγειοι + 4 υπέργειοι

Αριθμός Διαμερισμάτων : 36

 

ΠΕΡΙΓΡΑΦΗ :

Το οικόπεδο βρίσκεται στο Μεταξουργείο της Αθήνας και έχει πρόσωπο επί των οδών Μυλλέρου, Γερμανικού, Μαραθώνος και Λεωνίδου.

Το ακίνητο προορίζεται για χρήση κατοικίας και εμπορίου τοπικής σημασίας. Οι εμπορικές χρήσεις περιορίζονται στο ισόγειο επί της οδού Μυλλέρου και αποτελούν διακριτή ενότητα που λειτουργεί ανεξάρτητα με το υπόλοιπο συγκρότημα. Στο επίμηκες τμήμα του οικοπέδου με την διατηρητέα όψη επί της οδού Λεωνίδου, δημιουργείται εκθεσιακός χώρος ο οποίος ανταποκρίνεται στις αναπτυσσόμενες καλλιτεχνικές τάσεις της περιοχής.

Ο κτιριακός όγκος τοποθετείται σε σχήμα Π με στόχο την δημιουργία ενός προστατευμένου κεντρικού υπαίθριου χώρου και την συμπλήρωση του πολεοδομικού ιστού. Η κεντρική είσοδος βρίσκεται στην γωνία Μυλλέρου και Γερμανικού ενώ δευτερεύουσες είσοδοι δημιουργούνται στην οδό Γερμανικού και στην οδό Λεωνίδου μέσω της διατηρητέας πρόσοψης. Η είσοδος των οχημάτων γίνεται από το χαμηλότερο τμήμα του οικοπέδου επί της οδού Μαραθώνος.

Για τις κατακόρυφες κινήσεις υπάρχουν 4 πυρήνες κίνησης έτσι ώστε να αποφεύγονται εκτεταμένοι διάδρομοι στην εσωτερική όψη του κτιρίου που θα απέκλειαν τη διαμπερότητα των κατοικιών. Επιτυγχάνεται  η ομαδοποίηση των διαμερισμάτων και η δυνατότητα εκτόνωσης τους σε ιδιωτικούς υπαίθριους χώρους στις εσωτερικές όψεις του συγκροτήματος.

Το συγκρότημα αποκτά αναγνωρίσιμη μορφολογική ταυτότητα με το πλάσιμο των επιμέρους όγκων, με εσοχές και προεξοχές και με τη χρήση διαφορετικών υλικών και χρωμάτων όπως ξύλινες πέργκολες, μεταλλικά στοιχεία στους εξώστες, ξύλινες περσίδες, χρωματιστά πανέλα και μεταλλικά στέγαστρα. Τα στοιχεία αυτά προσδίδουν ζωντάνια και ενοποιούν το συγκρότημα συμβάλλοντας στην αισθητική αναβάθμιση της περιοχής.

Ο κεντρικός ακάλυπτος χώρος διαμορφώνεται με στοιχεία νερού, φύτευση (χαμηλή και ψηλή) και μαλακές επιφάνειες για την βελτίωση του μικροκλίματος. Τοποθετείται κατάλληλος εξοπλισμός, κερκίδες και καθιστικά, ώστε ο χώρος αυτός να γίνει ελκυστικός για τους ενοίκους και να φιλοξενεί κοινές τους δραστηριότητες.

Στο δώμα του κτηρίου επί της οδού Γερμανικού τοποθετείται υπαίθρια κολυμβητική δεξαμενή με θέα προς την Ακρόπολη και κλειστός χώρος άθλησης που απευθύνονται αποκλειστικά στους ενοίκους του συγκροτήματος. Υπάρχουν 3 τύποι διαμερισμάτων, οι οποίοι ανταποκρίνονται στις διαφορετικές ανάγκες των μελλοντικών χρηστών: διαμερίσματα των 60-75μ2 (με 1 υπνοδωμάτιο), των 75-95μ2 (με 2 υπνοδωμάτια) και των 100-140μ2 (με 3 υπνοδωμάτια).

Τα διαμερίσματα της πρώτης κατηγορίας διαθέτουν μεγάλη ευελιξία, με διαχωριστικά έπιπλα αντί για τοίχους και δυνατότητα ενοποίησης του εσωτερικού χώρου. Στην κατηγορία αυτή έχουν σχεδιαστεί και διαμερίσματα με το υπνοδωμάτιο σε ανοιχτό πατάρι και διπλό ύψος καθιστικού.

Τα διαμερίσματα της δεύτερης κατηγορίας είτε έχουν κεντρικό διάδρομο που καταλήγει στα 2 υπνοδωμάτια είτε διαθέτουν κεντρικό πυρήνα υγρών χώρων (κουζίνα και λουτρά) και δύο διαδρόμους κίνησης εκατέρωθεν, που οδηγούν στα υπνοδωμάτια.

Τέλος, τα διαμερίσματα με 3 υπνοδωμάτια διαθέτουν ενότητα master-bedroom και ορισμένα απ’ αυτά τζάκι. Όλα τα δωμάτια διαθέτουν επαρκή φυσικό φωτισμό και αερισμό καθώς και εξώστες ή βατά δώματα για υπαίθρια εκτόνωση. Προβλέπεται επίσης κεντρική εγκατάσταση αποκομιδής απορριμμάτων. Οι θυρίδες τοποθετούνται στο κεντρικό ή το ενδιάμεσο πλατύσκαλο κάθε κλιμακοστασίου.

Ορισμένα διαμερίσματα μπορούν εναλλακτικά να μετατραπούν σε εργαστήρια χαμηλής όχλησης που συνδυάζονται με κύρια χρήση την κατοικία (ατελιέ ζωγραφικής, εργαστήρια γλυπτικής, χαρακτικής, παραδοσιακές χειροτεχνίες), σύμφωνα με τις απαιτήσεις τις περιοχής. Πρόκειται για τα μικρότερα διαμερίσματα των 60μ2 που μπορούν να μετατραπούν σε μονόχωρα καθώς και για τα ισόγεια διαμερίσματα επί της οδού Μαραθώνος τα οποία έχουν μεγαλύτερο ύψος (3.40μ).

Το κτίριο ενσωματώνει στοιχεία βιοκλιματικού σχεδιασμού τα οποία βελτιώνουν τις συνθήκες θερμικής άνεσης στο επιβαρυμένο περιβάλλον του κέντρου της Αθήνας. Το δώμα του κτιριακού όγκου επί της οδού Μαραθώνος φυτεύεται, απορροφώντας την ηλιακή ακτινοβολία το καλοκαίρι και περιορίζοντας τις θερμικές απώλειες το χειμώνα. Τα στοιχεία νερού στον κεντρικό υπαίθριο χώρο χρησιμοποιούνται για δροσισμό, ενώ τα στέγαστρα, οι πέργκολες και οι περσίδες στα κλιμακοστάσια παρέχουν την απαραίτητη ηλιοπροστασία ώστε οι υπαίθριοι χώροι να καθίστανται βιώσιμοι τους καλοκαιρινούς μήνες.

 Όλοι οι χώροι ικανοποιούν την σχέση πλάτους – ύψους για επαρκή φυσικό φωτισμό. Τοποθετείται λευκό ανακλαστικό δάπεδο κοντά στα ανοίγματα για ανάκλαση της ηλιακής ακτινοβολίας και σκούρο στο πίσω μέρος για συσσώρευση θερμότητας. Στο δώμα του κτιρίου επί της οδού Μυλλέρου τοποθετούνται ηλιακοί συλλέκτες για την παραγωγή ζεστού νερού οικιακής χρήσης, σε ενιαία κεκλιμένη επιφάνεια.

Το συγκρότημα εντάσσεται αρμονικά στο φυσικό και οικιστικό περιβάλλον. Υπάρχει ποικιλία στις ποιότητες των εσωτερικών χώρων, κατασκευαστική και μορφολογική καθαρότητα, ευελιξία και λειτουργικότητα. Ο σχεδιασμός του συγκροτήματος εξασφαλίζει τους καλύτερους δυνατούς όρους διαβίωσης στους μελλοντικούς χρήστες και ικανοποιεί τις απαιτήσεις της αισθητικής. Αποτελεί ένα αισθητικά ελκυστικό σύνολο με σαφή αρχιτεκτονική άποψη ως προς την σύνθεση των όγκων, και την διαμόρφωση των όψεων. Χρησιμοποιούνται μοντέρνα υλικά με την πρόθεση, η αρχιτεκτονική σύνθεση, να εναρμονίζεται με τη φιλοσοφία της σύγχρονης κατασκευής.

 

Η συμμετοχή έχει δημοσιευτεί στον τόμο «102 x ΜΕΤΑΞΟΥΡΓΕΙΟ», ΕΚΔΟΣΕΙΣ ΔΟΜΕΣ 2007.

 


ΠΛΗΡΟΦΟΡΙΕΣ

ταχ. διεύθυνση

ΜΠΟΥΜΠΟΥΛΙΝΑΣ 12 Τ.Κ. 15341 ΑΓ. ΠΑΡΑΣΚΕΥΗ - ΑΘΗΝΑ

τηλ

+30 210 6541101

φαξ

+30 210 6541114

email

info4p@gmail.com

 

με την επιφύλαξη κάθε νόμιμου δικαιώματος, σχεδιασμός - copyright ©2009 4π architects® - τελευταία ενημέρωση site: 02.02.2012