Αρχιτεκτονικό   Γραφείο   Μελετών   &   Κατασκευών

Σύμβουλοι   Αρχιτέκτονες   Μηχανικοί

ΑρχικήΓενικάΠαρουσίασηΟργάνωσηΔιάφοραΕπικοινωνίαΠωλήσειςEnglish

κάντε click στις εικόνες για μεγέθυνση

διπλωματική  εργασία

ΠΑΤΣΟΥΜΑΣ  ΣΤΕΛΙΟΣ

Π Ο Λ Ε Ο Δ Ο Μ Ι Κ Α  Σ Χ Ε Δ Ι Α

Α Ρ Χ Ι Τ Ε Κ Τ Ο Ν Ι Κ Α  Σ Χ Ε Δ Ι Α

Φωτορεαλιστικές Απεικονίσεις

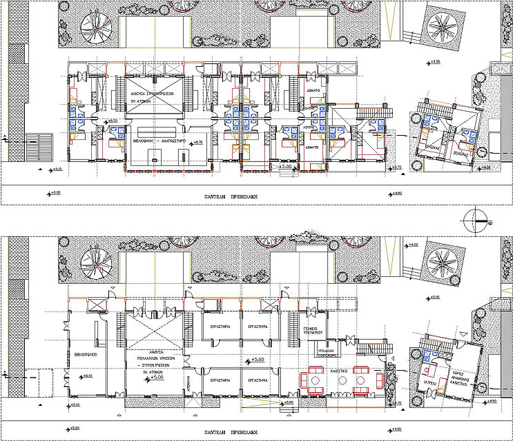
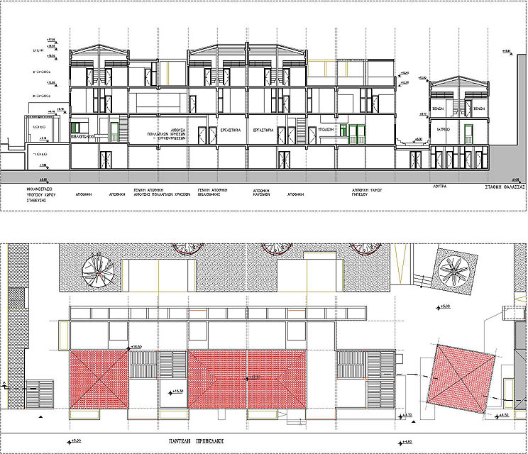
ΠΟΛΕΟΔΟΜΙΚΗ  ΕΠΕΜΒΑΣΗ  ΣΤΟΝ  ΥΠΑΙΘΡΙΟ  ΧΩΡΟ

ΔΥΤΙΚΑ  ΤΗΣ  ΠΑΛΙΑΣ  ΠΟΛΗΣ  ΤΟΥ  ΡΕΘΥΜΝΟΥ

ΜΕΛΕΤΗ : 2001 - διπλωματική εργασία ΕΜΠ

Παρουσίαση - V I D E O

 

 

ΠΕΡΙΓΡΑΦΗ :

Η ανάπτυξη του Ρεθύμνου από τους ιστορικούς χρόνους μέχρι τη σύγχρονη εποχή, έλαβε χώρα σε μια χερσόνησο της Βόρειας Ακτογραμμής της ν. Κρήτης, στην οποία δεσπόζει το ύψωμα της Φορτέτζας, που αποτελεί και το Βόρειο όριο της χερσονήσου. Η σύγχρονη πόλη αναπτύσσεται εξ' ολοκλήρου στο χερσαίο χώρο νότια και εκτός της χερσονήσου, της οποίας το μεγαλύτερο μέρος καταλαμβάνεται από την Παλιά Πόλη. Η χερσόνησος αποτελούσε το "εντός των τειχών" μέρος του Ρεθύμνου και το "κέντρο βάρους" της πόλης, ήταν πάντοτε στραμμένο προς τα ανατολικά, την αμμώδη Ανατολική Παραλία και τον εύφορο κάμπο, ενώ το δυτικό τμήμα της χερσονήσου ήταν σχεδόν πάντοτε άδειος ανεκμετάλλευτος χώρος, κενός από κτίρια, που διατίθετο κατά περίπτωση σε δευτερεύουσες χρήσεις. Ακόμα και σήμερα, σε αντίθεση με το εντατικοποιημένο, οικιστικά και λειτουργικά και οργανωμένο κυκλοφοριακά, ανατολικό τμήμα της χερσονήσου της Παλιάς Πόλης, το δυτικό τμήμα παρουσιάζει "αμηχανία", "ρευστότητα"΄, ακατάστατες χωροθετήσεις ετερόκλητων χρήσεων (Νομαρχία, Ποδοσφαιρικό Στάδιο, Δικαστήρια, Στρατιωτικά Κτίρια, Κλειστό Γυμναστήριο, Κ.Τ.Ε.Λ, Νεκτροταφείο, χώροι στάθμευσης κλπ). Παράλληλα, δεν υπάρχει καμία επαφή με το θαλάσσιο μέτωπο στο οποίο σήμερα υπάρχει ψηλός τοίχος και δρόμος ταχείας κυκλοφορίας, σε αντίθεση πάντα με την Ανατολική Ακτή.

 

Σκοπός της εργασίας, είναι η πολεοδομική οργάνωση του δυτικού χώρου της χερσονήσου, ώστε να αποκατασταθεί η λειτουργική ισορροπία των χρήσεων, η οργάνωση του κτιριακού όγκου και υπαιθρίων χώρων, η τακτοποίηση της κυκλοφορίας οχημάτων και η σύνδεση του παραλιακού μετώπου με την "καρδιά" της Παλιάς Πόλης με ένα δίκτυο πεζοδρόμων, που αποτελεί επέκταση του ιστορικά διατηρημένου ιστού του Ανατολικού τμήματος της χερσονήσου. Για την πολεοδομική οργάνωση του χώρου, αναζητούνται αναφορές στην πλούσια ιστορία του χώρου, με την ανάδειξη ξεχασμένων στοιχείων που έμμεσα έχουν αποτυπωθεί στο ίχνος της Πολεοδομίας της Παλιάς Πόλης, με κυρίαρχο αυτό της Τάφρου έξω από τα τείχη της Πόλης που έχουν πια ενσωματωθεί στο κτιριακό μέτωπο της οδού Δημακοπούλου. Η νέα τάφρος, ως αρχιτεκτονικό στοιχείο Νερού παρά ως αμυντικό μέσο, παρακολουθεί την σύνδεση του άξονα που ξεκινά από την Ανατολική Παραλία - Πλατεία Αγνώστου, διέρχεται από το μεταίχμιο Σύγχρονης - Παλιάς Πόλης (Οδός Δημακοπούλου - Κουντουριώτου) με το Παραλιακό Μέτωπο στα Δυτικά, το οποίο προσεγγίζει χαμηλά στο επίπεδο της θάλασσας, περνώντας κάτω από τον παραλιακό δρόμο των αυτοκινήτων που συνδέει τον περιφερειακό δρόμο της Φορτέτζας με το σύγχρονο Ρέθυμνο στα νότια.

 

Ο παραλιακός δρόμος υποχωρεί από το όριο του Παραλιακού Μετώπου προς τα κτίρια που ήδη υπάρχουν (Νομαρχία, Δικαστήρια, Κλειστό Γυμναστήριο), ώστε να αφήσει ελεύθερη παράκτια επιφάνεια στην οποία καταλήγουν πεζόδρομοι από την Παλιά Πόλη. Κατά μήκος της Νέας Ακτής δημιουργείται περίπατος.

Το ποδοσφαιρικό γήπεδο που καταλαμβάνει περίπου σήμερα μεγάλο ποσοστό της επιφάνειας της χερσονήσου, αφαιρείται, μέρος των ετερόκλητων κτιρίων που υπάρχουν στο χώρο κατεδαφίζεται, ενώ όσα διατηρούνται διαμορφώνουν μαζί με νέα που προστίθενται στις περασιές των πεζοδρόμων της Παλιάς Πόλης, εκατέρωθεν κτιριακά μέτωπα που δημιουργούν οπτικές φυγές προς την Δυτική Παραλία.

 

Οι χρήσεις στο Δυτικό τμήμα οργανώνονται με την προσθήκη πολιτιστικών λειτουργιών, εικαστικών εργαστηρίων και άλλων που συνάδουν με το ευρύτερο ιστορικό και αισθητικό πνεύμα που διακατέχει την Παλιά Πόλη και την κοσμοθεωρία των κατοίκων του σύγχρονου Ρεθύμνου. Επίσης, στα νέα κτιριακά κελύφη προστίθεται κατοικία με την μορφή της φοιτητικής κατοικίας - στοιχείο που λείπει από την ευρύτερη περιοχή του Ρεθύμνου , που λόγω του εφήμερου του χαρακτήρα της,  της ευμεταβλητότητας και της προσαρμοστικότητας της, είναι σε θέση να ενισχύσει την δυναμική του χώρου δίνοντας παράλληλα ένα παρόμοιο, με αυτόν στην ανατολική Παλιά Πόλη, αλλά πιο νεανικό χαρακτήρα.

Τακτοποιείται το θέμα των χώρων στάθμευσης, που διατάσσονται στα υπόγεια των νέων κτιρίων, ελευθερώνοντας την επιφάνεια του εδάφους για τους πεζούς και, επιτρέποντας την φύτευση μεγάλου μέρους της, με σκοπό την θερμική άνεση και την εξοικονόμηση ενέργειας. Αναζητούνται στοιχεία βιοκλιματικής αρχιτεκτονικής στα νέα κελύφη, εξαιτίας και του Δυτικού προσανατολισμού του χώρου μέσω του εκτυφλωτικού μετά το απόγευμα Παραλιακού μετώπου, στα μέλη των παλιών κτιρίων της Αρχιτεκτονικής Παράδοσης του Τόπου της Πόλης, όπως τα καφασωτά, τα κάθετα στέγαστρα, οι πέργολες ("κρεβατίνες" στα Κρητικά) ως στοιχεία υποστήριξης φύτευσης και καρποφόρων φυτών.

 

Απώτερος σκοπός είναι η ομαλή ένταξη των καινοφανών στοιχείων στον Παραδοσιακό Ιστορικό Ιστό της Παλιάς Πόλης, αλλά και η δημιουργία σύγχρονων συνθηκών διαβίωσης, παραμονής και χρήσης του χώρου για την αντιμετώπιση συσσωρευμένων προβλημάτων και απαιτήσεων ποιότητας ζωής - προδιαγραφών, στα πλαίσια του ιδιότυπου Κρητικού τρόπου ζωής που σέβεται την παράδοση, τη φύση και την θάλασσα της Κρήτης.

 

 

ΔΙΑΛΕΞΗ : Η ΠΟΛΕΟΔΟΜΙΚΗ ΕΞΕΛΙΞΗ ΤΟΥ ΡΕΘΥΜΝΟΥ.

ΡΕΘΥΜΝΟ : Η ΕΞΕΛΙΞΗ ΤΗΣ ΠΟΛΗΣ ΚΑΙ ΤΟΥ ΠΑΡΑΛΙΑΚΟΥ ΜΕΤΩΠΟΥ

Διάλεξη ΕΜΠ : 2001, Παρουσίαση σε επιστημονικό συνέδριο στο Ρέθυμνο : 2001

 

ΠΕΡΙΓΡΑΦΗ :

Η παραλιακή πόλη του Ρεθύμνου παρουσιάζει ενδιαφέρουσα ιστορική, κοινωνική και πολεοδομική εξέλιξη που επηρέασε στο παρελθόν αλλά και σήμερα την εσωτερική της δομή και την εικόνα της. Πρόκειται για ένα τυπικό, αρκετά ανεπτυγμένο επαρχιακό κέντρο με στοιχεία αστικού χαρακτήρα τα οποία άλλα προέρχονται από την ιστορική πόλη και άλλα είναι νεότερα. Η οικονομική – τουριστική ανάπτυξη έχει οδηγήσει στην εξάπλωση της πόλης κατά μήκος του παραλιακού μετώπου και η σύγχρονη πόλη, αν και εμπεριέχει στοιχεία της ιστορικής της διαδρομής, διαφοροποιείται στο σχήμα τη δομή και την κοινωνική οργάνωση από το ιστορικό κέντρο.

Γίνεται καταγραφή των προβλημάτων που προέρχονται από το παρελθόν και την σύγχρονη αστική επέκταση σε συνδυασμό με την ιδιότυπη οικονομική - τουριστική ανάπτυξη, αλλά και των δυνατοτήτων αξιοποίησης της υπάρχουσας δυναμικής για την ισόρροπη ανάπτυξη.

 

Η συσχέτιση του παλιού με το καινούριο γίνεται με καθαρά επιστημονικές-αντικειμενικές μεθόδους αλλά και υπό το πρίσμα της προσωπικής αντίληψης των πραγμάτων είτε πρόκειται για τον απλό κάτοικο του Ρεθύμνου, τον Έλληνα ή ξένο τουρίστα είτε για τον ίδιο μας τον εαυτό.

 

Η εργασία αναζητεί τον σύγχρονο προσδιορισμό της ταυτότητας - φυσιογνωμία της πόλης του Ρεθύμνου με την ερμηνεία και την κατανόηση παλιών (υπαρκτών σήμερα ή μη) και σύγχρονων στοιχείων της πόλης.

 


ΠΛΗΡΟΦΟΡΙΕΣ

ταχ. διεύθυνση

ΜΠΟΥΜΠΟΥΛΙΝΑΣ 12 Τ.Κ. 15341 ΑΓ. ΠΑΡΑΣΚΕΥΗ - ΑΘΗΝΑ

τηλ

+30 210 6541101

φαξ

+30 210 6541114

email

info4p@gmail.com

 

με την επιφύλαξη κάθε νόμιμου δικαιώματος, σχεδιασμός - copyright ©2009 4π architects®  - τελευταία ενημέρωση site: 02.02.2012